Roofing Concept Model
Perspective from the Community Lawn
Perspective from the Communal Kitchen Mezzanine
Site Plan
Site Section
Transverse Section
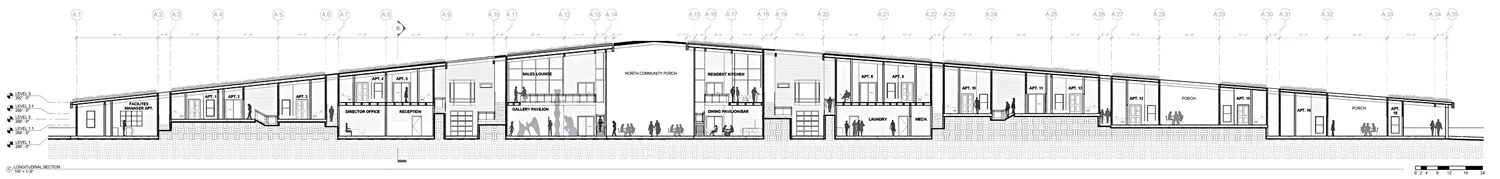
Longitudinal Section
First Floor Plan
Second Floor Plan
Section Detail
Residential Building North Elevation
Residential Building South Elevation
Studio Building North Elevation
Studio Building South Elevation
Section Model of Studio Building
Section Model of Studio Building
SectionModel of Studio Building
Site Concept Model
Site Concept Model
Roofing Concept Model
Roofing Concept Model
prev / next