LSU COASTAL SUSTAINABILITY STUDIO RESEARCH PROJECT 2013-2014
TEAM MEMBERS: Meredith Sattler, Carolina Rodriguez, Christopher James
Conducted as a comprehensive survey of elevated structures in coastal Louisiana, this research initiative by the LSU Coastal Sustainability Studio revealed the architectural beauty and ramifications of inhabiting a landscape outside of the levee. Elevated upwards of twenty feet in some locations, these homes and buildings must withstand the imminent threat of hurricanes and their associated storm surge. The result is a vacant ground plane of vehicles and storage, while all of the living spaces hover overhead. Additionally, the methods by which people ascend these buildings are richly varied, from elaborate stairs and ramps to makeshift "cajun elevators". These issues of access and ascent became very generative for the research team, so we chose to diagram and document the access techniques for each elevated structure surveyed. Pictured here are some examples of this exploration in various coastal Louisiana contexts.
As a researcher, this project was the beginning of my fascination with coastal sustainability and its implications for the architect.
LSU COASTAL SUSTAINABILITY STUDIO BOOK PROJECT 2015-2017
- Published by Springer in "Mississippi Delta Restoration: Pathways to a Sustainable Future" as a part of their Estuaries of the World series in 2018 (ISBN: 978-3-319-65662-5)
TEAM MEMBERS: Christopher James, Giovanni Coakley, Jori Erdman, Elizabeth Williams, Craig Colten, John Day, Jeffrey Rutherford, Adrian Wiegman, et al.
New Orleans, Louisiana, is an iconic American city that is located in one of the most dynamic deltaic environments in the world. Called "The Accidental City" by author Lawrence Powell, New Orleans provides a case study for all of south Louisiana, as well as cities around the world that are increasingly threatened by sea level rise as to how settlement can continue in such a precarious location. In this project, the design proposal elevates the city of New Orleans as an adaptive course of action. The two-part strategy begins by reinforcing the lake front edge of New Orleans, along Lake Ponchartrain using infill to extend the higher, buildable ground. The higher ground would be fronted by a new cypress swamp and urban edge. The second part of the strategy aims to build a series of levee-like structures called "polders" by the Dutch, although we use the French term, "marais," across the city by following existing infrastructure. The design proposal further develops edge and fill tactics to complete an elevation of the city out of flooding, in whole or in part.
The design proposal became a chapter in the book entitled, "Mississippi Delta Restoration: Pathways to a Sustainable Future" which was edited by John W. Day and Jori Erdman, and published by Springer in 2018 as a part of their Estuaries of the World series. According to Springer:
"This book is a new and provocative treatment dealing with and defining sustainable pathways for the restoration of the Mississippi Delta. Based on a consideration of natural functioning of the Mississippi delta, factors that led to its severe deterioration, and major global trajectories of the 21st century, the authors investigate possible future pathways for sustainable management of the delta. They consider current conditions as well as future trajectories of climate and energy and resource scarcity. The book concludes that without profound changes of how humans live in and manage the delta, sustainability of the delta will be profoundly compromised."
In addition to the design work of the Marais Project (Chapter 11), I helped to author Chapter 10 (Raising Buildings: The Resilience of Elevated Structures), and coordinated logistics during the book's completion along with Adrian Wiegman, Jeff Rutherford, and Giovanni Coakley.
A copy of Mississippi Delta Restoration can be purchased here.
Multi-Scalar Biomimetic Design for Resilient Coastal Inhabitation
HONORS RESEARCH THESIS PROJECT 2013-2017
- LAKA International Design Competition Honorable Mention (October 2015)
- LSU Discover Scholar Award (January 2016)
- Louisiana State of the Coast Conference 1st place Student Poster Presentation (June 2016)
- Eleven Magazine Biomimicry Design Competition Honorable Mention (June 2017)
The slow violence of environmental degradation caused by climate change directly challenges the resilience of human inhabitation. Resilience in this case is the ability for architecture to persist in the face of environmental stress and strain, integrating itself and its occupants into the surrounding landscape through responsive programs, structures, materials, and systems. In the coastal regions of the world, environmental stresses are especially acute, for sea level rise, subsidence, and the increasing severity of storms continually threaten homes and cities with inundation. To break the expensive build-flood-rebuild cycle that plagues coastal communities, an ethical-shift must occur in the design of buildings and cities that embraces adaptation to the water instead of avoidance.
The Oystower | Oystown project answers this ethical imperative within the context of coastal Louisiana, testing the concept of biomimicry as a means to design resilience at the scale of a dwelling and the scale of a community. Modeled formally and functionally after oysters and their accretive reefs, the design proposal deploys bio-engineered oyster reefs as both a structural and conceptual foundation at these two scales. Synthesizing the oyster + tower and the oyster + town, respectively, the Oystower | Oystown project stewards the health of both the surrounding coastal ecosystem and its human inhabitants through biomimetic design.
A copy of the final thesis book can be viewed and purchased here.
Click here to watch a recording of the presentation given on November 29, 2017 at the LSU School of Architecture.
STUDIES IN COMMUNITY DESIGN, 2017
According to a report by the Brookings Metropolitan Policy Program, Baton Rouge ranks 11th among the nation’s 100 largest metro areas in concentrated poverty.[1] The US Census Bureau defines this concentrated poverty as “40 percent of the population of a tract living below the federal poverty threshold.”[2] To fully address this problem, it is prudent to investigate the concept of unemployment, which is both a cause and effect of poverty. When people are unable to work and provide income for themselves and their families, poverty deepens.
Unemployment can be divided into three categories: frictional, structural, and cyclical.[3] Frictional unemployment is usually short-term and occurs during the natural searching process, such as the transition between two jobs or students looking for their first job. Structural unemployment occurs when a shift in the economy causes a mismatch between the skills workers have and skills needed by employers. Cyclical unemployment is a result of economic recession, where the demand for goods and services falls dramatically, thus the need for employees. All three of these types are present in Baton Rouge - the severity and longevity varying for different segments of the population.
This project seeks to understand the current landscape of unemployment in Baton Rouge by investigating the process of finding a job and the points at which someone is likely to become or stay unemployed. This is followed by a study in the categories of employment that are typically available to a population, and the way that has materialized in the urban fabric of Baton Rouge. Through the subsequent mapping and historical analysis of the city, numerous barriers to employment evidenced themselves, such as suburban sprawl and racial segregation. However, through design, there is the opportunity to break down these barriers and offer more connections between disenfranchised populations and the vital employers of the city.
[1] Kneebone, Elizabeth; Nadeau, Carey; Berube, Alan. The Re-Emergence of Concentrated Poverty: Metropolitan Trends in the 2000s. The Brookings Metropolitan Policy Program. 2011. Retrieved from: https://www.brookings.edu/interactives/the-growth-and-spread-of-concentrated-poverty-2000-to-2008-2012/?keyword=concentrated%20poverty
[2] Bishaw, Alemayehu. Changes in Areas with Concentrated Poverty: 2000 to 2010. US Census Bureau. 2014. Retrieved from: https://www.census.gov/library/publications/2014/acs/acs-27.html
[3] Amadeo, Kimberly. Types of Unemployment. The Balance. Web. Accessed October 2017. https://www.thebalance.com/types-of-unemployment-3305522
FLOODED COMMUNITY RESETTLEMENT INITIATIVE
(Led by the Louisiana State Office of Community Development and the Louisiana RESTORE Program)
AUGUST 2017 - DECEMBER 2017
TEAM MEMBERS: Giovanni Coakley, Sarah Eikrem, Jori Erdman, Christopher James, Malachi Pursley, Brandon Slaughter, Amanda Verastegui
Located in the rural town of New Roads, Louisiana, the neighborhood of Pecan Acres is no stranger to water. In the past thirty years, the community has flooded over fifteen times, ruining homes and disrupting livelihoods. Although Pecan Acres was built by the Federal Housing Authority (FHA) to encourage home-ownership among lower-income African Americans in the area, the site selected for the development is extremely low-lying and suffers from frequent inundation and subsidence. Additionally, the homes have slab-on-grade foundations which perform poorly in flooding situations. Evidenced by the most recent floods in October 2017, the houses are unfit for the floodplain, and the constant repairs are economically and socially unsustainable.
Nevertheless, residents have persisted for multiple generations, resulting in a tight-knit community proud of their homes and proud of their neighborhood. With this in mind, the Louisiana Office of Community Development (OCD) through their Louisiana RESTORE task force proposed a buy-out program to purchase the flooded properties and relocate the whole community to a new site with new homes. This would effectively address the flooding problem while preserving the camaraderie between neighbors that make Pecan Acres so vivacious. To facilitate this process, our team was charged with mediating the goals of the program with the needs of the residents. Our first task was to host a community meeting where residents could learn more about the buy-out process and voice their concerns. Understandably, many residents were leery of leaving their homes without the assurance of receiving a home of equal or greater value. To address this concern, the second half of the meeting focused on understanding the pros and cons of their current homes in order to design the new ones. Through guided conversations, charrette, and housing precedent images to which the residents could respond with their likes and dislikes, numerous design drivers emerged. For example, the covered carport is utilized frequently as a social space in the community, so it was important to preserve that typology in the new housing.
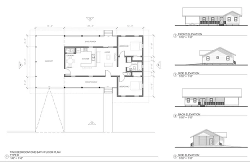
Based on the feedback received from the meeting, the design team began a series of proposals at both the site-scale and building-scale in accordance to the financial constraints outlined by the RESTORE program. Priorities for the siting of the new neighborhood included more efficient sub-surface drainage, landscaped water retention, wider streets for better circulation and public space, and the preservation of the residents' proximity to current neighbors. Through a series of plan diagrams and site sections, suggestions were made by the team to address these issues on whatever site is decided by OCD. Priorities for the design of the new homes included elevated foundations above the Base Flood Elevation (BFE) with generous freeboard, accessibility in and out of the home, and the use of economically and environmentally sustainable materials. These issues were addressed through the design of four housing types - (2) two bedroom one bathroom, and (2) three bedroom two bathroom. Again emphasizing the importance of the carport as a social space, the driveways of the homes ramp up to provide both vehicular and pedestrian access to the elevated foundation. Porches also wrap around the homes to provide additional exterior gathering spaces and to keep the windows from solar heat gain. The suggested wall section incorporates "flood-hardy" materials that insulate the building for energy efficiency while remaining resilient during flood events.
Although the relocation effort is still far from complete, the design process speaks to the importance of community-engagement. The opportunity to listen to the needs of a community and effectively respond through design is a privilege not to be taken for granted. In the case of Pecan Acres, architecture has the power to house people safely out of flood's harm and influence the viability of future generations. It was with great pleasure that I engaged in this dialogue, hopefully to make a positive difference in the lives of this community.
Click here to watch news coverage on the project.
NOTE: The images depicted here are examples of drawings and renderings for a report to the Louisiana Office of Community Development that is currently in development. Since the report and the relocation process are still underway, these drawings are not to be used for final construction or documentation purposes. The Louisiana Office of Community Development and the LSU School of Architecture retain ownership of these graphics until the publishing of the final report.